Квартира, Продається простора квартира у новому та обжитому житловому комплексі на проспекті С.Банде...
Тип
Квартира
Тип операції
Продам
Кімнат
2
Поверх
9/10
площа
92.00/35.00 кв. м.
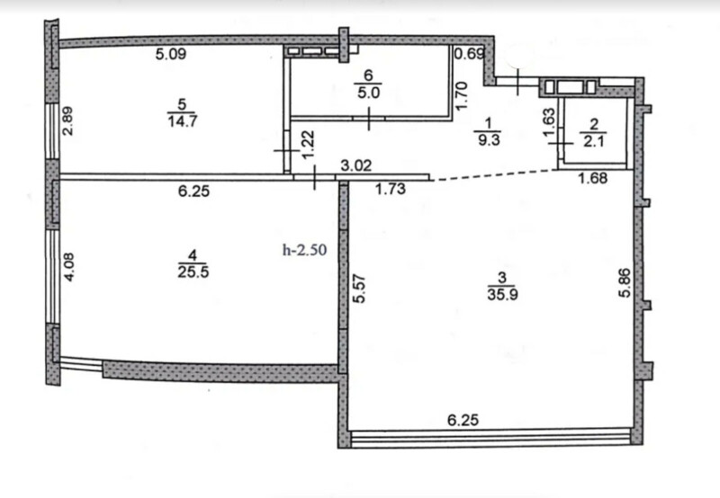
Продається простора квартира у новому та обжитому житловому комплексі на проспекті С.Бандери.
Загальна площа 92,5 кв.м, зручне планування, великі кімнати. Квартира сира, проведені чорнові роботи, змонтовано систему теплої підлоги по всій квартирі. Зроблена вся електрика і поштукатурені стіни. Підготовлені виводи та кріплення ззовні під кондиціонери в залі та спальні.
Поруч з будинком є вся необхідна інфраструктура.
Загальна площа 92,5 кв.м, зручне планування, великі кімнати. Квартира сира, проведені чорнові роботи, змонтовано систему теплої підлоги по всій квартирі. Зроблена вся електрика і поштукатурені стіни. Підготовлені виводи та кріплення ззовні під кондиціонери в залі та спальні.
Поруч з будинком є вся необхідна інфраструктура.
14:54, 27 листопада, №321402
Тернопіль, вулиця Торговиця (Живова), 15Б
+380(67)470-57-87, +380(99)114-90-40
11.77
дуже добре
60 оцінок та відгуків
7580 переглядів в грудні



