Квартира Аляска, Продається простора квартира у новому будинку по вулиці Текстильна. Квартира у зда...
Тип
Квартира
Тип операції
Продам
Район
Аляска
Кімнат
1
Поверх
1/10
площа
44.00/14.00 кв. м.
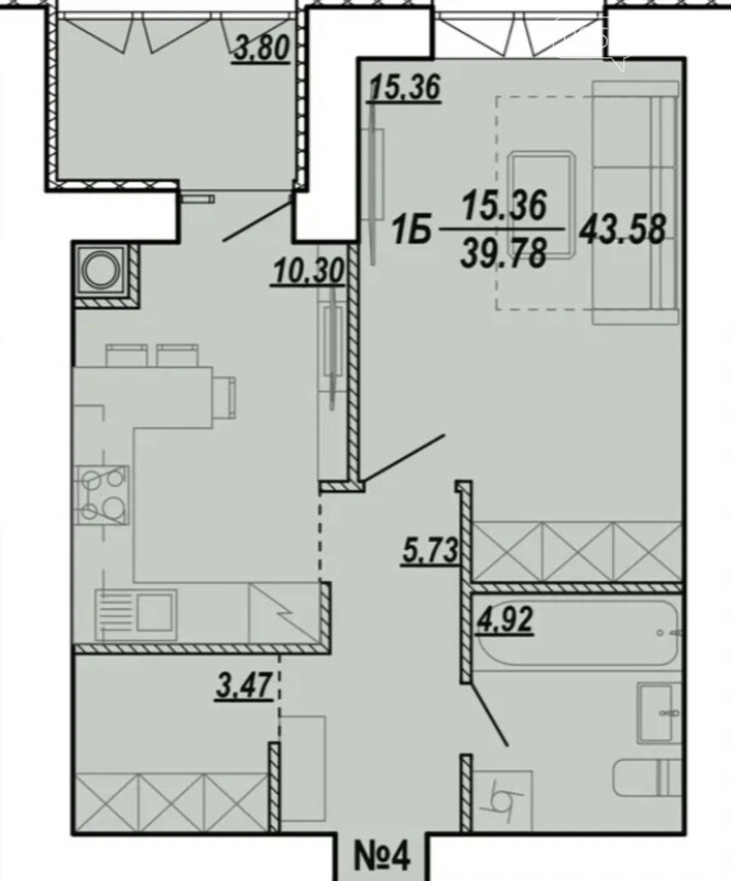
Продається простора квартира у новому будинку по вулиці Текстильна.
Квартира у зданому цегляному будинку, високий перший поверх. Загальна площа 44 кв.м, велика кухня з лоджією, окрема кімната та суміжний санвузол. Квартира сира, залиті стяжки, поштукатурені стіни, електрика розведена по точках. Тепла підлога по всій площі.
Квартира у зданому цегляному будинку, високий перший поверх. Загальна площа 44 кв.м, велика кухня з лоджією, окрема кімната та суміжний санвузол. Квартира сира, залиті стяжки, поштукатурені стіни, електрика розведена по точках. Тепла підлога по всій площі.
11:45, 11 грудня, №322772
Тернопіль, вулиця Торговиця (Живова), 15Б
+380(67)470-57-87, +380(99)114-90-40
11.77
дуже добре
60 оцінок та відгуків
3690 переглядів в грудні


