Квартира Аляска, Продається квартира на вул. Текстильній. Житло розташоване в зданому цегляному буд...
Тип
Квартира
Тип операції
Продам
Район
Аляска
Кімнат
1
Поверх
1/8
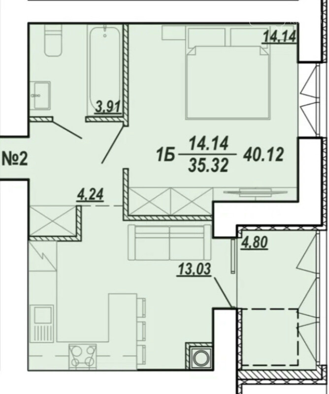
площа
40.00/18.00 кв. м.
Продається квартира на вул. Текстильній.
Житло розташоване в зданому цегляному будинку на зручному 1-му поверсі.
Основні характеристики:
Загальна площа – 40 кв.м
Роздільне планування, просторі та світлі кімнати
Квартира у стані після будівельників:
-залиті стяжки
-поштукатурені стіни
-розведена по точках електрика
-Підлога утеплена.
Ідеальний варіант для тих, хто хоче зробити ремонт під себе.
Житло розташоване в зданому цегляному будинку на зручному 1-му поверсі.
Основні характеристики:
Загальна площа – 40 кв.м
Роздільне планування, просторі та світлі кімнати
Квартира у стані після будівельників:
-залиті стяжки
-поштукатурені стіни
-розведена по точках електрика
-Підлога утеплена.
Ідеальний варіант для тих, хто хоче зробити ремонт під себе.
15:18, Вчора, №322773
Тернопіль, вулиця Торговиця (Живова), 15Б
+380(67)470-57-87, +380(99)114-90-40
11.77
дуже добре
60 оцінок та відгуків
2839 переглядів в грудні



